Перепланировка недели: 5 идей для однушки в панельном доме (бесплатно)

Распространённая серия типовых панельных домов П-55 довольно удачная – с шумоизоляцией и просторными квартирами до 39 кв. м. Но и её можно доработать, например, обустроить спальню или даже детскую, гардеробную и кухню с барной стойкой.

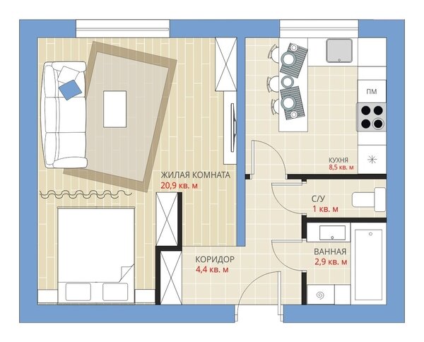
Типовая планировка

Планировка от застройщика не предполагает объединение кухни и комнаты – их разделяет несущая стена. Зато в прихожей есть небольшая ниша-кладовая для верхней одежды или бытовых принадлежностей. Комната довольно узкая и вытянутая, к тому же неправильной формы. Но именно это позволяет сделать перепланировку и обустроить спальню напротив окна.

Вариант 1

В квартире для холостяка или молодой пары не обязательно разделять комнату и обустраивать спальню. Поэтому в гостиной установим удобный угловой диван и обустроим мини-кабинет. Хранить вещи будем в огромном шкафу во всю стену, для книг и декора предусмотрим стеллаж и комод под телевизор, для верхней одежды и хозоборудования сохраним нишу в прихожей. На кухне установим угловой гарнитур и большой обеденный стол.

Вариант 2

В глубине комнаты достаточно места для двуспальной кровати, поэтому комнату разделим шторой на гостиную и спальню. Для хранения вещей возведём фигурную нишу на месте старой кладовки. В неё встроим сразу два шкафа – со стороны спальни и прихожей. На кухне немного перенесём коммуникации, чтобы расположить раковину у окна – мыть посуду и любоваться видами. При этом останется достаточно места для барной стойки.

Вариант 3

В этом варианте на кухне установим более традиционный угловой гарнитур и круглый обеденный стол. Над коридором между кухней и прихожей соорудим антресоль для хранения редко используемых вещей. Между гостиной и прихожей тоже появится фигурная ниша с двумя встроенными шкафами. Но в этом случае отделим спальню от гостиной раздвижной стеклянной перегородкой. В итоге получится две комнаты правильной формы, которые визуально воспринимаются просторней и светлее.

Вариант 4

Для семьи с ребёнком придётся разделить жилую комнату на спальню и детскую. Используем для этого стеллажи и шторы. Для большой семьи необходимо также предусмотреть достаточное количество шкафов. При этом единственный способ обустроить гостиную – перенести её на восьмиметровую кухню. Для этого придётся ограничиться линейным гарнитуром, привесить телевизор на стену, а рядом с окном установить диванчик и обеденный стол.

Вариант 5

Согласовать частичный демонтаж несущей стены сложно, на это потребуется разрешение от проектной организации – МНИИТЭП. Это вряд ли удастся сделать владельцам квартир на нижних этажах. Но такая перепланировка позволяет получить очень просторную студию с двумя большими окнами. Кухня и гостиная объединятся, поэтому можно будет во время готовки смотреть телевизор или общаться с друзьями. На месте кухни у окна установим письменный стол, а в глубине квартиры обустроим полноценную гардеробную вместо существовавшей ранее ниши.

Подписывайтесь на канал и узнавайте свежие тренды в дизайне интерьеров. Ищете мебель? Купите её в магазине дизайнерской мебели Филдс.

Автор: Павел Шелягин.

Facebook, Instagram, Вконтакте, Houzz