«Умная» перепланировка: однушка 46 м² для семьи с двумя детьми

Чтобы найти место для просторной гостиной, спальни и детской, архитекторы студии MUS перенесли кухню вглубь квартиры, а также воспользовались высотой потолков в старом доме – 3,3 метра!

Большую часть времени семья проводила на кухне или гостиной, поэтому эти помещения было решено объединить. Это самая просторная часть квартиры, где всегда много воздуха и света из-за больших окон. К тому же дверь на балкон заменили распашной французской со стеклом.

Высокие потолки позволили устроить мезонин над кухней и прихожей. Там появилась спальня с матрасом прямо на полу – эту часть заключили в металлический куб. Рядом встроили шкафы для вещей первой необходимости, хотя по высоте они больше похожи на комоды.

Лестница на второй ярус металлическая, причём её каркас продлили на всю ширину комнаты. Получился декоративный элемент с отсылкой к стилю лофт. Часть стены рядом с металлоконструкцией обшили деревом и встроили шкафы и комоды. В одном из них спрятан телевизор.

Напротив окна обустроили зону отдыха. На фоне светлых стен и мебели нейтральных оттенков выделяется дизайнерское кресло в кожаной обивке. Это прекрасный пример того, как преобразить интерьер одной яркой деталью.

Другим акцентом выступила картина с монохромным портретом.

Блок кухни тоже заключили в раму из чёрного металла. От верхних шкафов отказались – потолок низкий, и они бы выглядели слишком громоздко.

Основа концепции этого интерьера – колористическое решение. Поэтому большая часть мебели, в том числе гарнитур, круглый обеденный стол и дизайнерские стулья, белоснежные.

Нехватку места в самом гарнитуре компенсировали шкафами, которые установили рядом. Их закрыли сплошным деревянным фасадом, поэтому поначалу не сразу понятно, что за ними скрывается система хранения. Даже входную дверь не разглядеть, а ведь она тоже за одним из фасадов!

Основную часть детской оставили нетронутой – это свободная зона для игр и занятий. Поэтому у окна установили столик для двоих детей, а пол застелили тёплым ковролином. Почти по всему периметру комнаты установили высокие шкафы с дверцами разных форм и узором из отверстий-ручек на фасадах.

Но и здесь появился собственный второй ярус. Туда ведёт комод-лестница с ящиками внутри ступеней. Наверху в целях безопасности установили ограждение. Две кровати установили параллельно – лёжа на них, можно любоваться пейзажем за окном или рассматривать рисунок звёздного неба вечерами.

Для оформления санузла тоже использовали много дерева и керамогранита-имитации – панелями обшили почти все стены. А чтобы расширить узкое пространство вдвое, целую стену полностью закрыли зеркалами.

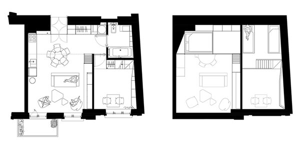
Планировка.

Подписывайтесь на канал и узнавайте свежие тренды в дизайне интерьеров. Ищете мебель? Купите её в магазине дизайнерской мебели Филдс.

Автор: Павел Шелягин.

Facebook, Instagram, Вконтакте, Houzz