Квартира холостяка 35 м²: мебель в центре и прозрачный санузел

Создатели отеля в Барселоне задались целью на 35 кв. м уместить весь необходимый функционал. В центре они установили низкий шкаф, от которого в разные стороны расходится мебель и даже… туалет за стеклом!

В оформлении интерьера сочетали бетон и старую кирпичную краску, белые матовые поверхности и лепные розетки на потолке. Всю мебель сделали на заказ. Она словно разделяет квартиру на зоны. Например, кухонная столешница перетекает в барную стойку за диваном, напротив него – двуспальная кровать и телевизор.

«Скелетом» интерьера стал невысокий шкаф, который разделяет пространство, но не доходит до потолка и сохраняет ощущение воздуха и простора. Фасады из натурального дерева открываются по-разному и в разные стороны, скрывая то платяной отсек, то ящики для белья.

Вдоль стен осталось достаточно свободного места, чтобы легко перемещаться по комнате. А единый потолок делает её визуально просторней. Функции зонирования служит ещё и освещение, которое свисает с потолка.

В центральный шкаф со стороны кухни встроили даже бытовую технику – мини-холодильник и микроволновую печь. Необходимый минимум посуды хранится тоже внутри шкафа, чтобы не закрывать фасадами пространство под столешницей и сохранить ощущение лёгкости и невесомости конструкции.

Зону кухни и санузла разделяет небольшая зеркальная перегородка возле умывальника. Но и она практически не скрывает то, что в обычных квартирах принято прятать.

И туалет, и душевая кабина отгорожены от основной части комнаты лишь стеклянными перегородками. Проект продуман с технической точки зрения, чтобы обеспечить удаление неприятных запахов и излишней влаги. Но всё равно на подобное решение может решиться разве что очень смелый холостяк.

Даже декор в этом отельном номере нестандартный. Так верхнюю часть шкафа-перегородки превратили в цветочные горшки для алоэ, а стены украсили постерами из картин Хичкока.

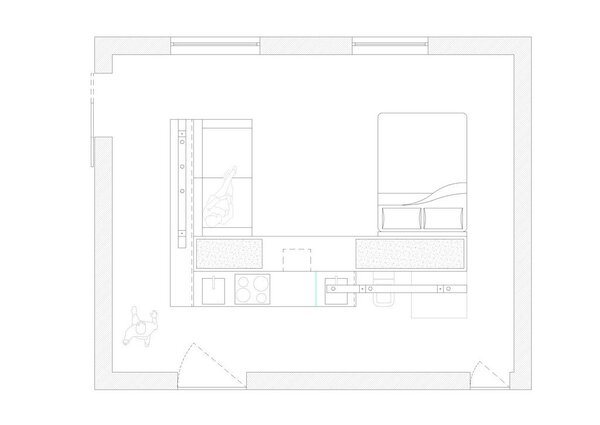
Планировка.

Подписывайтесь на канал и узнавайте свежие тренды в дизайне интерьеров. Ищете мебель? Купите её в магазине дизайнерской мебели Филдс.

Автор: Павел Шелягин.

Facebook, Instagram, Вконтакте, Houzz